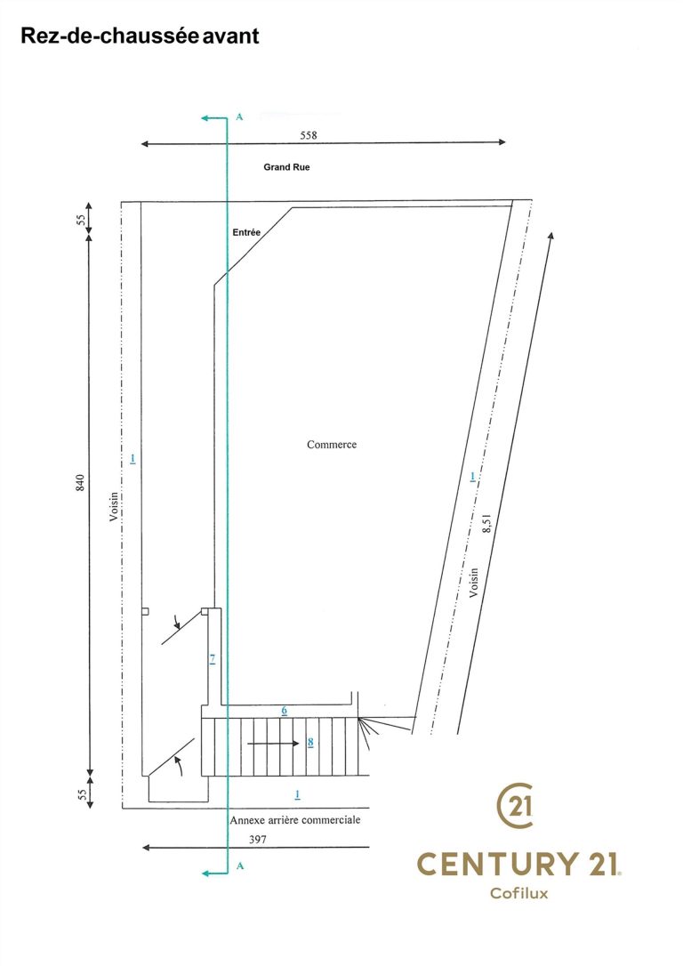
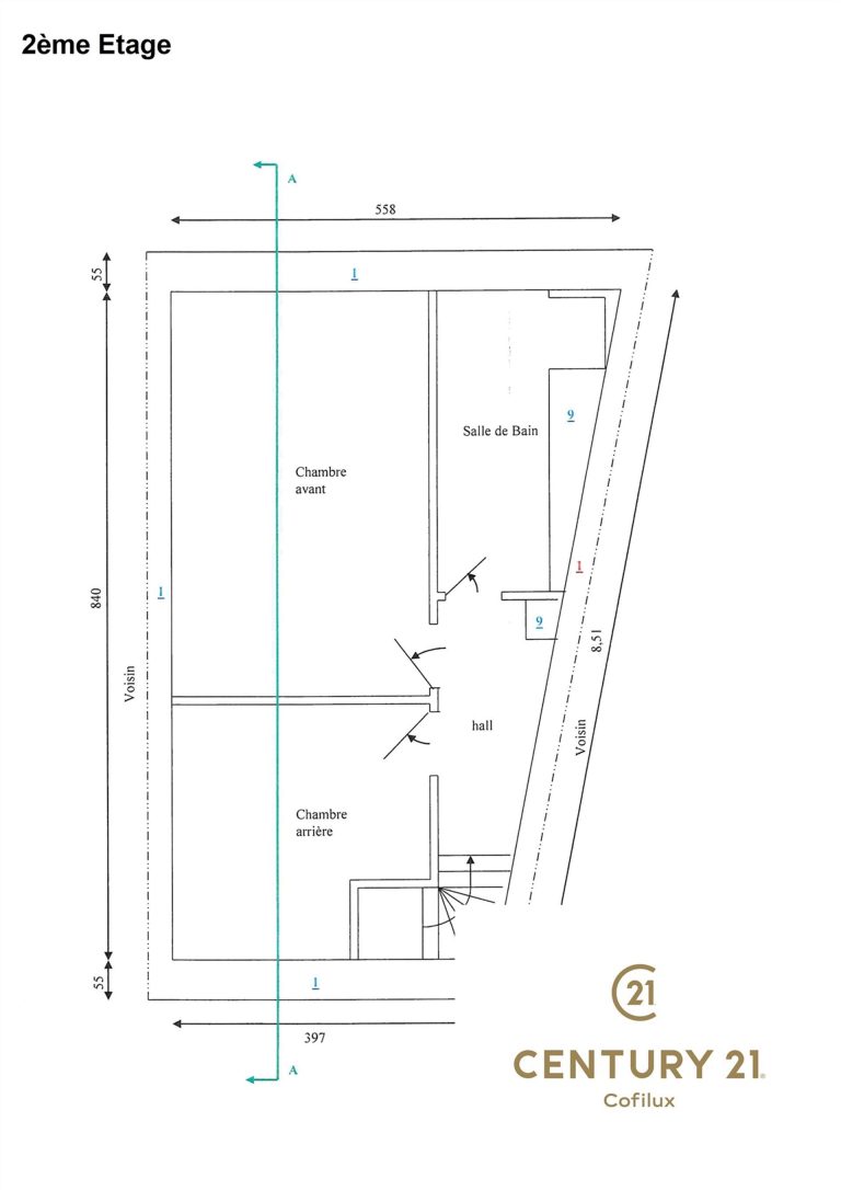
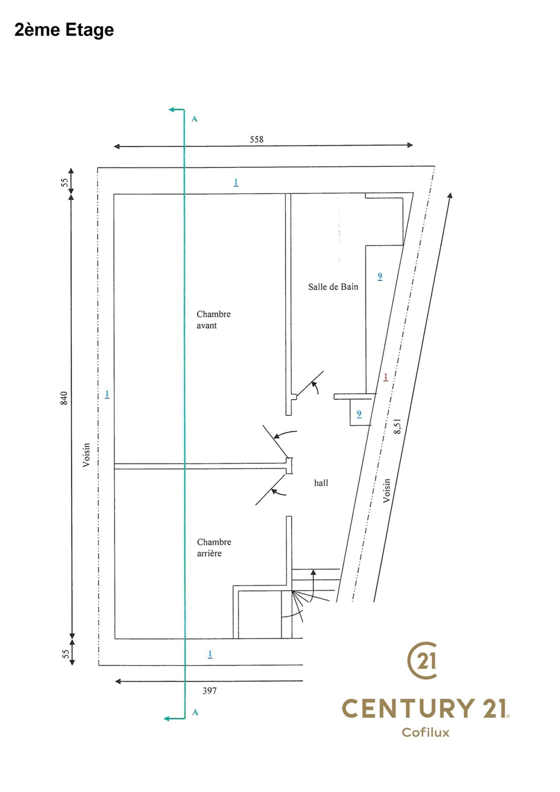
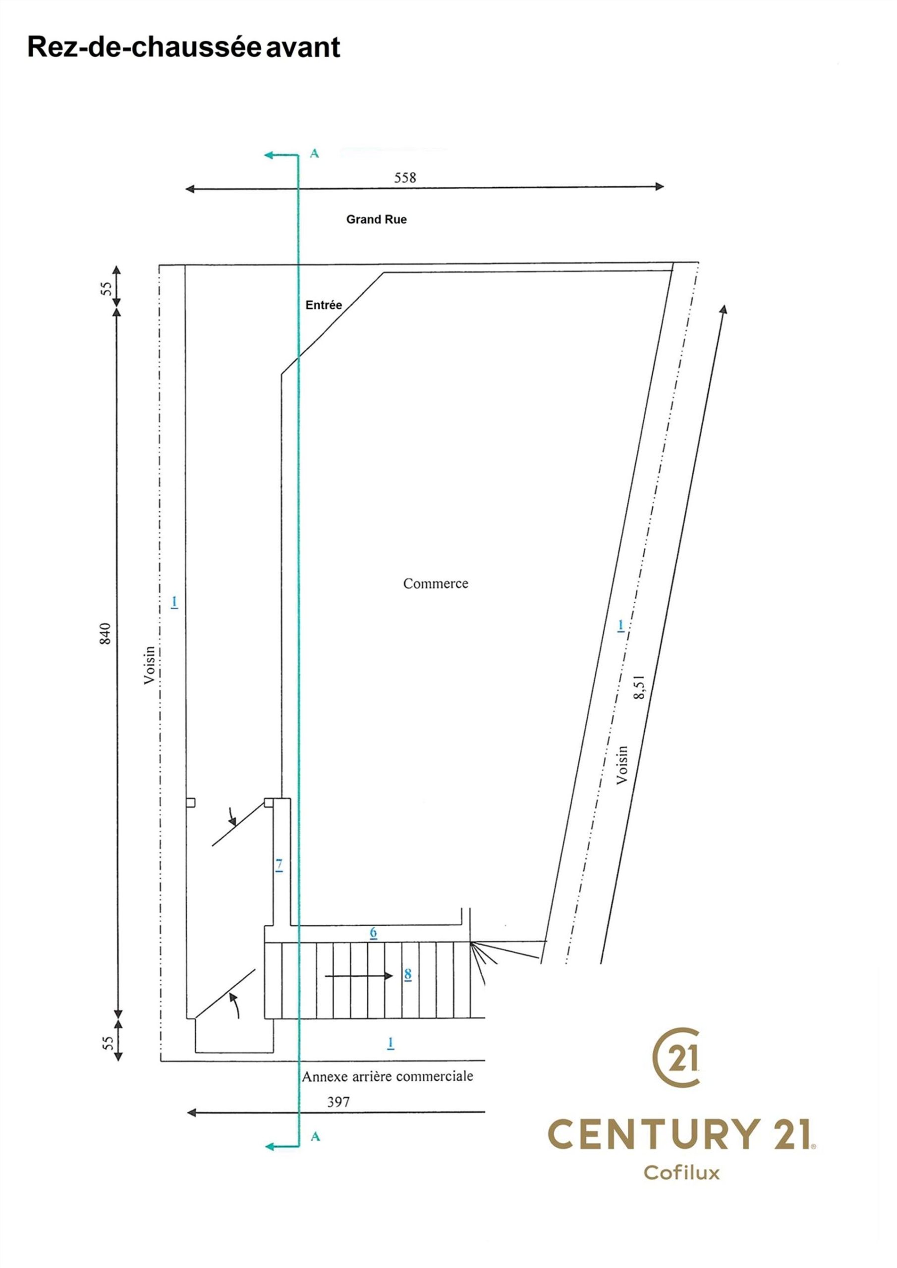
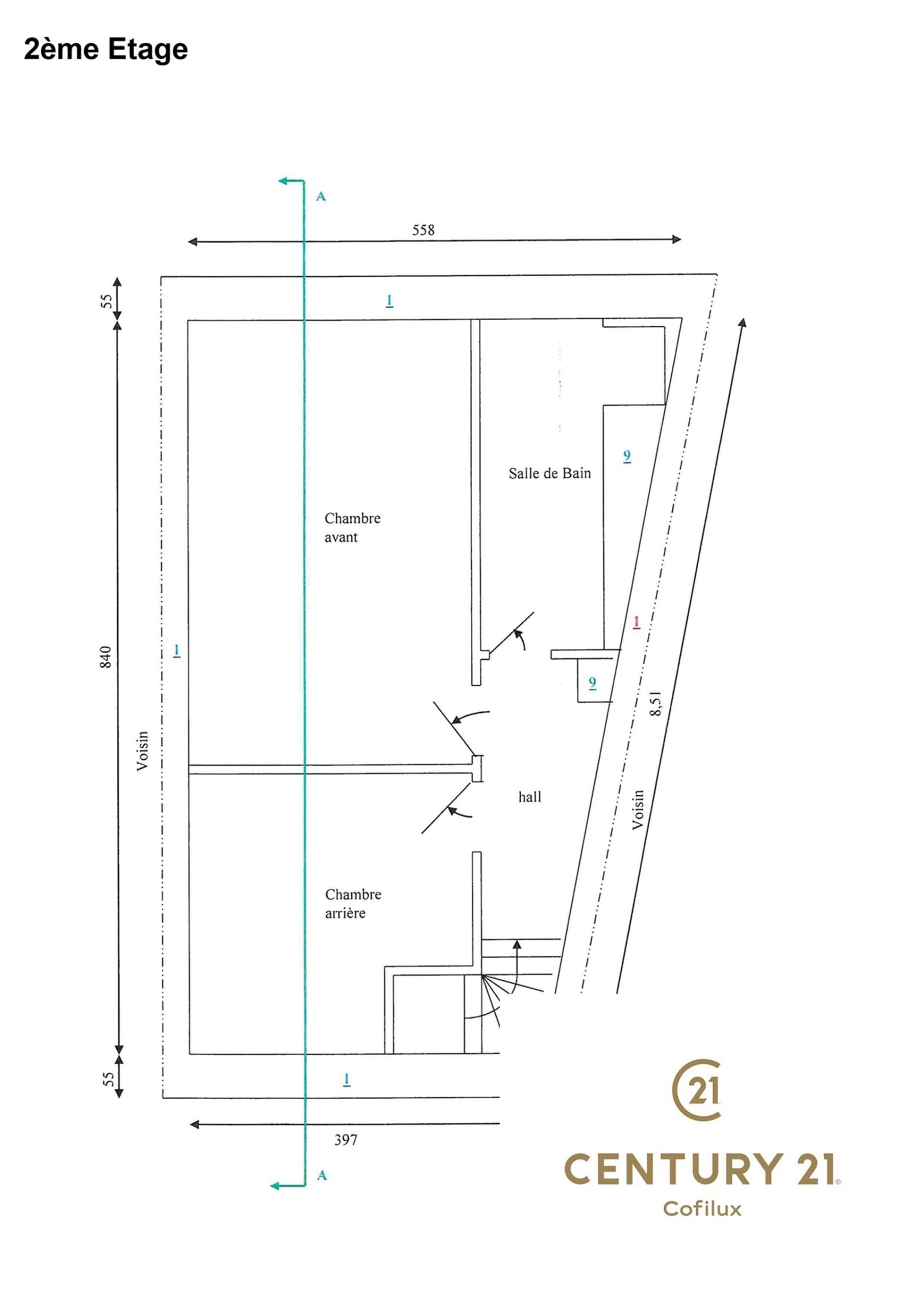
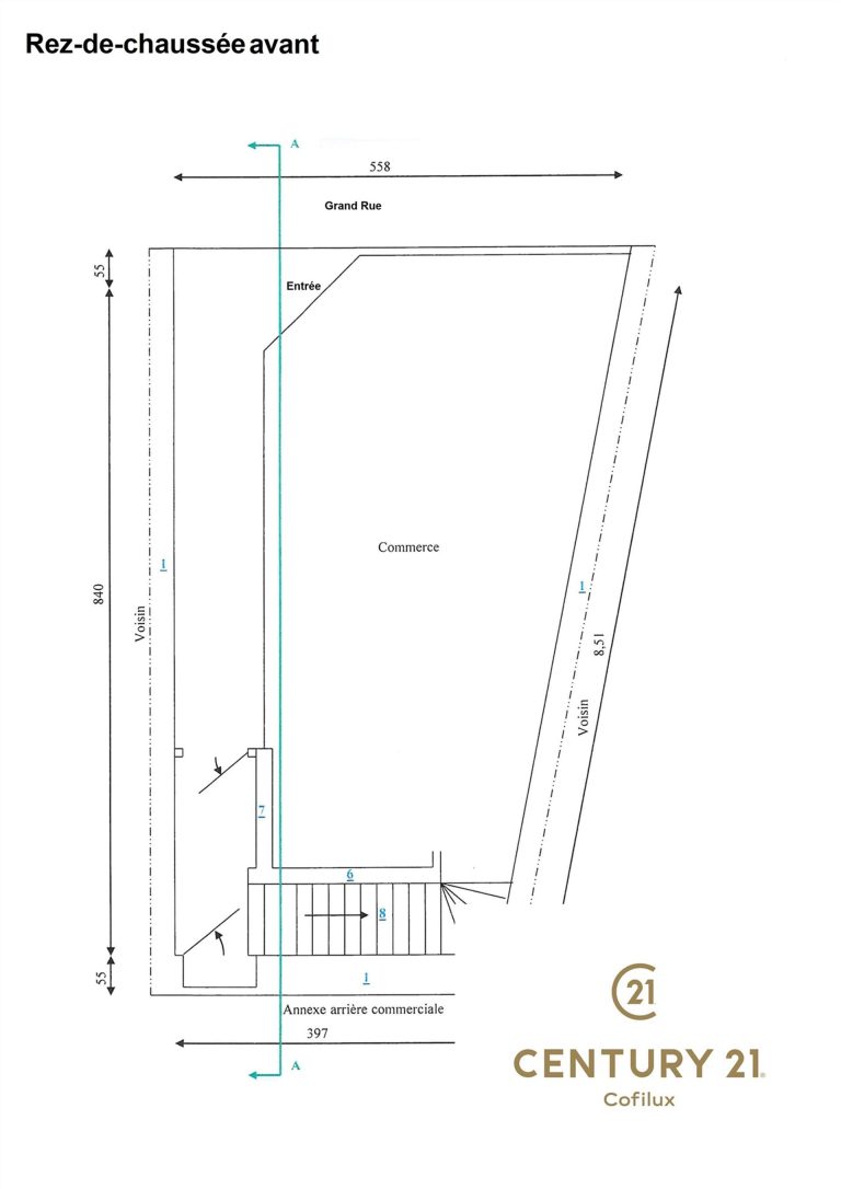
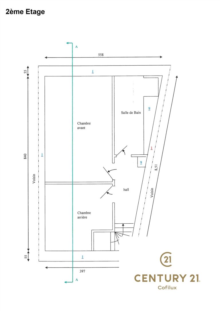
— OPTION — Athus, dans la Grand Rue, Century 21 Cofilux vous propose ce petit immeuble mixte composé d’un rez commercial de +/- 75 m² (loué à 550 € ) et d’un appartement de +/- 90 m² avec 2 chambres (loué 670 €). Le rez commercial est composé d’une pièce principale à l’avant, une espace de stockage à l’arrière, un wc, une coure extérieur et un cave (compteur d’eau, chaudière, espace de stockage). L’appartement se présente en duplex : 1er étage (+/- 50 m²) Cuisine ouverte sur le séjour et au 2em étage (+/- 50 m²) : hall de nuit, 2 chambres et une salle de douche. La séparation des niveaux est en bois, les châssis sont en PVC DV. PEB D (317 kWh/m².an; 28.663 kWh/an;20260221013554). L’installation électrique est en conformité. Chauffage au mazout avec la possibilité d’installer une chaudière au gaz de ville ). RC 1.405 € et Précompte 1.739 €.
Les informations fournies ont un caractère indicatif et non contractuel et ne dispensent pas la personne intéressée de réaliser les vérifications. Le prix est indicatif ne mettant pas en charge la responsabilité de l’agence

Maison
Wolkrange, Century 21 Cofilux vous















